Продажа 2х-комнатной квартиры
Московская область, Химки, кв-л Клязьма, ул Летчика Ивана Федорова, 2к2
- 59 м²
- Площадь
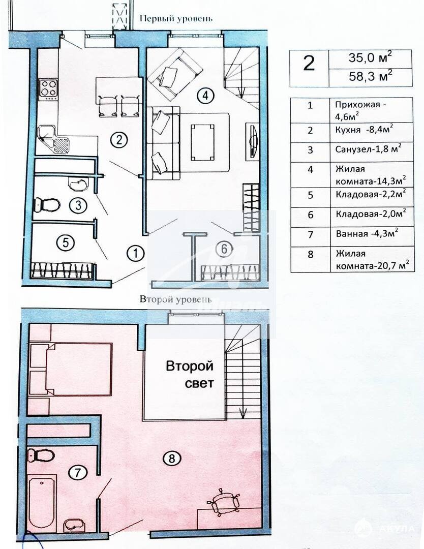
- 35.00 м²
- Жилая площадь
- 8.40 м²
- Площадь кухни
- 8/9
- Этаж
9 200 000 ₽
155 144 ₽ за м²
ID объявления 12275313
Поделиться
Добавить в избранное
Уютная двухуровневая квартира в ЖК «Город набережных» — гармония природы и городского комфортаСовременный городской комфорт и вдохновляющая атмосфера в живописном ландшафте — ваша новая жизнь с видом на лес и реку!Описание квартиры:- **Концепция и планировка:** необычный, очень интересный проект, позволяющий воплотить разнообразные дизайнерские решения. Открытое пространство со «вторым светом» создаёт ощущение простора и лёгкости.- **Первый уровень:** восьмиметровая кухня с балконом, просторная жилая комната с лестницей на второй этаж и возможностью зонирования в два яруса.- **Второй уровень:** большая обособленная жилая комната — идеальное уединённое место для отдыха и работы.- **Окна и вид:** балкон и панорамные окна выходят во двор с живописным видом на берег реки Клязьмы. Установлены качественные окна *Rehau*.- **Санузлы:** два санузла — по одному на каждом уровне. Мебели нет.Дом и двор:- **ЖК «Город набережных»:** живописный жилой комплекс 2013 года постройки с искусственными каналами, набережными и архитектурой в стиле старой Италии.- **Дом:** монолитный, три подъезда, современные лифты.- **Двор:** благоустроенная территория с детскими и спортивными площадками, прогулочными зонами. Вся придомовая территория под видеонаблюдением.- **Парковка:** подземный и наземный многоуровневый паркинг.Транспортная доступность:- **Расположение:** 11 км от Москвы. Удобные выезды на Ленинградское, Дмитровское шоссе и платную трассу *М11*. ЖК входит в зону парковки каршеринга.- **Общественный транспорт:** остановка в 5 минутах ходьбы. За 20–30 минут можно добраться до станций *МЦД* «Хлебниково» (*МЦД-1*), «Химки» (*МЦД-3*), метро «Планерная», «Беломорская», «Речной вокзал», «Физтех».- **Аэропорт:** 5–10 минут на автомобиле до аэропорта «Шереметьево».Инфраструктура рядом:- **Природа:** ЖК окружён лесами, в 2 км — Клязьминское водохранилище. Чистый воздух, великолепные закаты и рассветы. Несмотря на близость к аэропорту, здесь тихо.- **Образование:** школа и детский сад «Лесная сказка» — 9 минут пешком.- **Медицина:** рядом многопрофильная клиника *АО «Медицина»* — лидер отечественного здравоохранения.- **Сервисы:** на территории ЖК есть всё для жизни: магазины, пекарни, кафе, пункты выдачи, почта, банки, аптеки, ателье, химчистки, салоны красоты, фитнес-клубы, солевая пещера.Условия продажи:- **Тип продажи:** свободная продажа.- **Собственник:** один собственник.- **Юридическая чистота:** без обременений и долгов, полная стоимость в договоре, быстрый выход на сделку.Преимущества МИЭЛЬ:- Покупателю выдаётся Правовой сертификат, гарантирующий юридическую чистоту объекта.- Возможна ипотека с особыми условиями для клиентов МИЭЛЬ от банков-партнёров.- Работаем с любыми источниками финансирования (материнский капитал, военный сертификат и т. д.).**Воплотите мечту о жизни в гармонии с природой и комфортом большого города!**
Дата обновления: 23 мая 2026