Продажа помещения свободного назначения

Московская область, Химки, 279

32 256 840 ₽

467 491 ₽ за м²

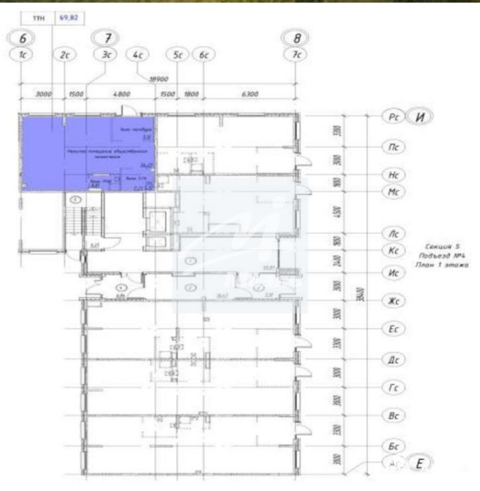
69 м²
Площадь
1
Этаж

Поделиться

Добавить в избранное

Продажа готового арендного бизнеса/торгового помещения по адресу: Московская обл, г Химки, кв-л Международный, ЖК Квартал Ивакино.

- Потенциальная окупаемость - #11 лет.
- Потенциальный МАП (месячный арендный поток) - 241 500 руб./мес.
- Арендатор: - .
- Общая площадь - 69 м2.
- Высота потолков - 3, 94 м.
- ВЫДАЧА КЛЮЧЕЙ - 4 квартал 2025 г.
- КОЛ-ВО ПРОЖИВАЮЩИХ - 30 000 чел.
- Жилой комплекс «Квартал Ивакино» — уютный квартал в живописном районе, где есть все для комфорта. 2 школы, 3 детских сада, ФОК, поликлиника и даже набережная в 5 минутах пешком от дома создают идеальные условия для наполненной и активной жизни.
- Понадобится всего 12–15 минут езды, чтобы добраться до станций МЦД-1 «Хлебниково» или МЦД-3 «Химки».

#ГАБ #ТП

Дата обновления: 6 декабря 2025